DSC_0164
Reforma de la Pl. País Valencià
Modernització de la plaça
Localització: Pl. País Valencià
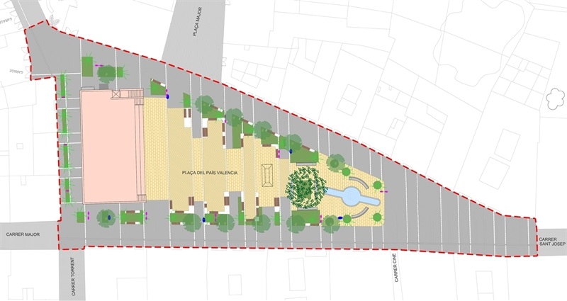
La plaça del País Valencià ha esta objecte d’un molt important procés de renovació integral. Estes obres, completen i continuen els treballs ja finalitzats a la plaça de la Constitució i plaça Major i també a carrers com ara Sant Francesc, Major, Torrent...

Més per a les persones

La intervenció ha estat en la línia dels treballs anteriors, tota la plaça es construix en forma de plataforma única amb l’eliminació de voreres i entrebancs arquitectònics i s’instal·larà el mateix tipus de paviment que s’ha fet servir anteriorment. Estes obres continuen en la línia de reservar este espai per a vianants i reduir l’ús de vehicles privats a guals i emergències.

Més verd

La nova plaça és més verd, tot i que es conservaran les palmeres entre elles es planten noves espècies d’arbres i creen jardineres al voltant dels nous seients.

Més còmoda

Com a punt de trobada la plaça guanya nou mobiliari urbà (en la línia del ja instal·lat a la Plaça Major. La idea és oferir seients i bancs que animen a la conversa, a l’encontre.

Més fresca

Esta reforma també implica la transformació de la zona de la pedra i la columna que passaran a “flotar” sobre una nova font que ha de refrescar l’ambient de la plaça. Els elements actuals d’este conjunt es distribuixen de forma diferent i “s’obrin” cap a l’escenari.

Més escenari

L’escenari guanya metres amb la suma de l’espai que actualment ocupen les escales d’accés al propi escenari i a la Sala d’Exposicions i té una forma de rectangle complet que facilita el seu ús.

03_PLANTA_GENERAL_PLANTA_final_web
IMG_7126
IMG_7128
IMG_7131
IMG_6978
IMG_6983
IMG_8661
DSC_0006
DSC_0023
DSC_0025
IMG_9200
DSC_0164
DSC_0381